| 月額費用 | 545,160円(税別)(11,000円/坪) |
|---|---|
| 共益費 | 共益費込 |
| 仲介手数料 | 無料 |
| 敷金 | 月額賃料6ヶ月分 ※敷金は業種によってご協議となります。 |
| 礼金 | 月額賃料1ヶ月分(税別) |
| 入居可能日 | 即入居可能 |
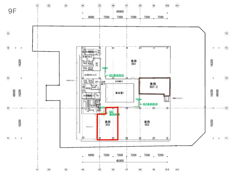
| 物件総称名 | 古町ルフル |
|---|---|
| 住所 | 新潟県新潟市中央区古町通7番町1010、935 |
| 交通 | 新潟交通バス停「古町」から徒歩1分 |
| 階数/総階数 | 9階/12階 |
| 面積 | 49.56坪/163.84m² |
| 用途/仕様 | 賃貸オフィス/貸事務所 |
| 建物構造 | 鉄骨(S)造 |
| 耐震 | 新耐震基準 |
| 竣工年月 | 2020年3月 |
| 取引態様 | 一般媒介 |
| 天井高 | 2,800mm |
|---|---|
| 空調 | 個別空調 |
| トイレ | 男女別トイレ,共同トイレ |
| エレベーター | 5基 |
| 備考 | 契約形態:契約期間共に、ご協議 工事区分:賃貸借契約開始日ならびに内装工事着手日、店舗開店日等につきましては、別途お打ち合わせさせていただきます。 ■基本設備 空調:ガスヒートポンプ方式(個別運転可) 昇降機:エレベータ5基(うち1台:非常用エレベータ)、エスカレーター1基(1~2階) 床構造:OAフロア FL-100 床仕上:タイルカーペット 床耐荷重:300kg/㎡ 天井仕上:LGS+PB9.5+岩綿吸音板 |
最新物件確認日:2025年10月23日
この物件に関する
お問い合わせ窓口