物件お問い合わせ

物件お問い合わせフォーム

地域や物件により、お取り扱いできない場合があります。予めご了承ください。
以下の項目にご記入いただきますと、日生不動産PM事業部の担当者よりご連絡させていただきます。
なお、ご記入にあたっては、「プライバシーポリシー」をご確認いただいた後、必要事項を入力し、送信ボタンを押してください。

※ご依頼内容については社外秘を厳守いたします。ご記入いただいたことによる委託契約などは一切生じません。

お問い合わせ物件について

物件画像

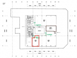
間取り図

古町ルフル 9階 区画903

賃貸オフィス/貸事務所

月額費用594,720(税別/共益費込)

  • 面積:49.56坪/163.84m²
  • 住所:新潟県新潟市中央区古町通7番町1010、935 
お問い合わせ項目 必須


お問い合わせ内容

お客様情報

お名前 必須 (全角)
ふりがな 必須 (全角)
郵便番号 (半角数字)
郵便番号を入力すると自動的に住所が表示されます。
住所 (全角)
電話番号 (半角数字)
メールアドレス 必須 (半角英数)