事業用賃貸物件検索

古町ルフル 2階 区画201

物件情報(賃貸オフィス/貸事務所,貸店舗/商業施設)

物件外観

物件外観

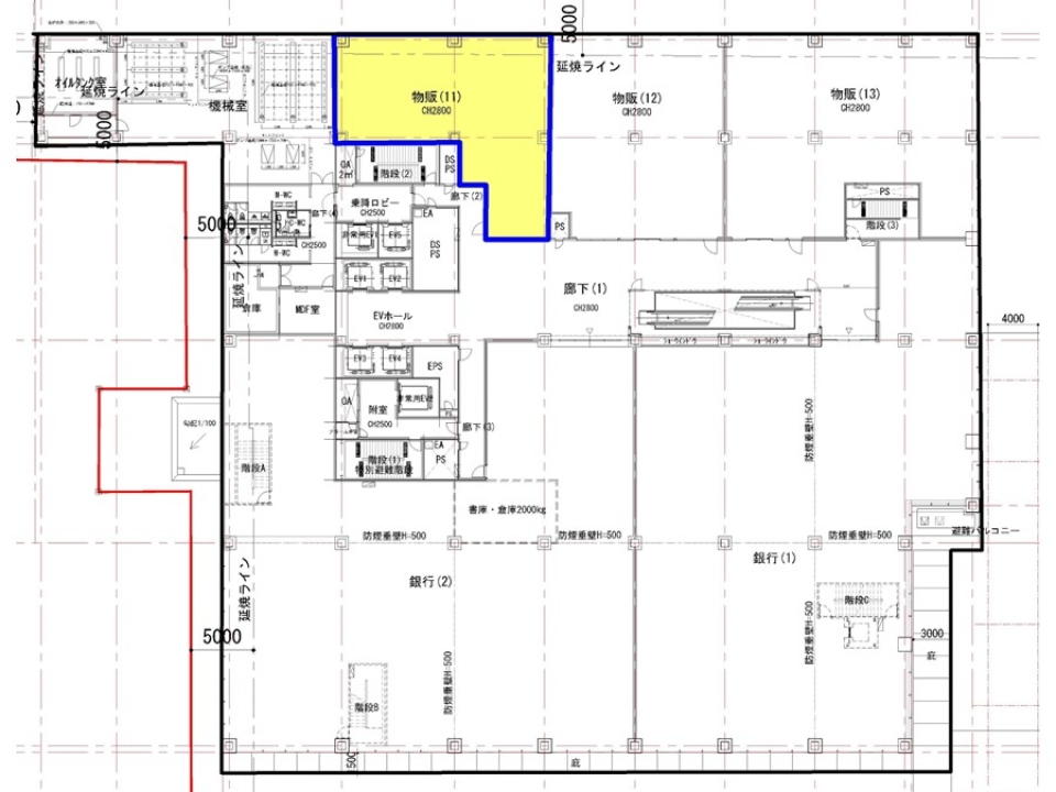
物件図面

物件図面

賃貸条件

月額費用 696,840円(税別)(12,000円/坪)
共益費 共益費込
仲介手数料 696,840円(税別)
敷金 賃料の6ヶ月分 ※敷金は業種によってご協議となります。
礼金 賃料の1ヶ月分
入居可能日 2026年4月1日

物件概要

物件総称名 古町ルフル
住所 新潟県新潟市中央区古町通7番町1010、935
交通 新潟交通バス停「古町」から徒歩1分
階数/総階数 2階/12階
面積 58.07坪/191.97m²
用途/仕様 賃貸オフィス/貸事務所,貸店舗/商業施設
建物構造 鉄骨(S)造
耐震 新耐震基準
竣工年月 2020年3月
取引態様 一般媒介

設備詳細

天井高 3,000mm
空調 個別空調
エレベーター 5基
備考

新潟市の中心エリアに位置する「古町ルフル」の2階です!
店舗・事務所どちらでもご相談ください。
2階まではエスカレーターがあります♪
お引渡しは2026年4月以降となります。




契約形態:契約期間共に、ご協議
工事区分:賃貸借契約開始日ならびに内装工事着手日、店舗開店日等につきましては、別途お打ち合わせさせていただきます。

■基本設備
空調:ガスヒートポンプ方式(個別運転可) 
昇降機:エレベータ5基(うち1台:非常用エレベータ)、エスカレーター1基(1~2階)
床構造:⼆重床 H=300㎜(1~2階)
床仕上:ビニールタイル(1~2階)
床耐荷重:300kg/㎡(1~2階)
天井仕上:化粧PB(1~2階)

・店舗、オフィス いずれも受入可能です。※飲食店不可
・本記載事項は予告無く変更する場合があります。

最新物件確認日:2025年10月9日

物件の雰囲気

2020年竣工 天井高2,800㎜の開放的なビジネス環境

◆役所機能の一部やテナントが集まった「古町ルフル」 ◆古町エリアに誕生した新たなランドマークです。 ※現テナント入居前の写真です。現況と異なる場合がございます。

物件内観 ※現テナント入居前の写真です。現況と異なる場合がございます。

物件内観 ※現テナント入居前の写真です。現況と異なる場合がございます。

物件内観 ※現テナント入居前の写真です。現況と異なる場合がございます。

周辺地図

この物件に関する
お問い合わせ窓口