| 月額費用 | 非公開 |
|---|---|
| 共益費 | 非公開 |
| 仲介手数料 | - |
| 敷金 | 月額賃料12ヶ月分 |
| 礼金 | なし |
| 入居可能日 | 相談 |
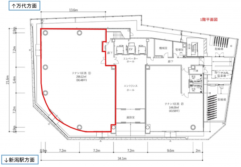
| 物件総称名 | マルタケビル |
|---|---|
| 住所 | 新潟県新潟市中央区東大通1-4-1 |
| 交通 | JR新潟駅まで徒歩1分 |
| 階数/総階数 | 1階/9階 |
| 面積 | 90.48坪/299.12m² |
| 用途/仕様 | 賃貸オフィス/貸事務所,貸店舗/商業施設 |
| 建物構造 | 鉄骨(S)造 |
| 耐震 | 新耐震基準 |
| 竣工年月 | 2020年1月 |
| 取引態様 | 仲介 |
| 床仕様 | OAフロア有 |
|---|---|
| 天井高 | 2,700mm |
| 空調 | 個別空調 |
| トイレ | 男女別トイレ |
| エレベーター | 3基 |
| 駐車場設備 | 応相談 近隣提携先をご紹介いたします。 |
| 備考 | ≪新潟駅至近!1階路面店舗の募集です!≫ 上階はオフィス、隣にはカフェがあります。 契約形態:普通賃貸借契約 契約期間:5年間 仲介手数料:月額賃料1ヶ月分 構造:免震構造 床仕上:タイルカーペット 床仕様:OAフロア(H=100mm) ・1Fにスターバックスコーヒー、8Fにコンサートホール、レストランがございます。 ・ダブルスキン構造のサッシを採用。 ・全室南東~南西向き採光、電動ブラインドを採用。 ・東京~新潟間新幹線は最短で1時間半です。 |
最新物件確認日:2025年2月21日
この物件に関する
お問い合わせ窓口