事業用賃貸物件検索

大幸ビル 白山浦1(2階貸店舗・貸事務所)

物件情報(賃貸オフィス/貸事務所,貸店舗/商業施設)

物件外観

物件外観

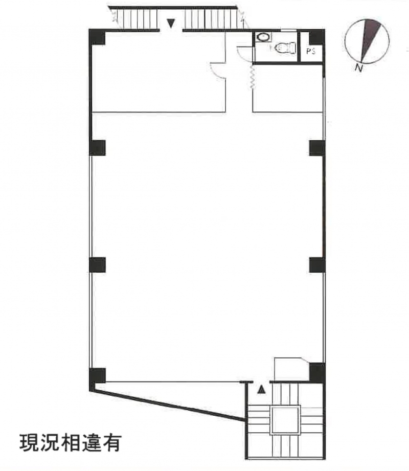
物件図面+駐車場見取り図

物件図面+駐車場見取り図

賃貸条件

月額費用 120,000円(税別)(3,124円/坪)
共益費 共益費込
仲介手数料 120,000円(税別)
敷金 月額賃料6ヶ月分(業種により応相談)
礼金 月額賃料1ヶ月分(税別)
入居可能日 即入居可能

物件概要

物件総称名 大幸ビル
住所 新潟県新潟市中央区白山浦1-236-9
交通 JR「白山駅」より徒歩約10分、新潟交通バス「新潟中央高校」より徒歩約2分
階数/総階数 2階/3階
面積 38.41坪/127.00m²
用途/仕様 賃貸オフィス/貸事務所,貸店舗/商業施設
建物構造 鉄筋コンクリート(RC)造
竣工年月 1981年11月
取引態様 一般媒介

設備詳細

空調 個別空調
駐車場設備 有り(平面式) 2台(賃料に含む)
備考 契約形態:普通賃貸借契約
契約期間:2年間
引渡条件:現況
入居可能日:2025年4月中旬以降予定

・当社指定の家賃保証会社にご加入頂きます。
 初回保証料:賃料の1.5ヶ月分 / 更新料 賃料の10%(1年毎)
・現況渡しとなります(現況:学習塾内装)

最新物件確認日:2025年1月20日

物件の雰囲気

2方面に窓があり、日当たりの良い明るい雰囲気の室内です。

募集は2階全体です。流し台、トイレ、個室が1部屋あります。

周辺地図

この物件に関する
お問い合わせ窓口