事業用賃貸物件検索

愛和ビル(1棟貸し)

物件情報(賃貸オフィス/貸事務所,貸店舗/商業施設)

物件外観

物件外観

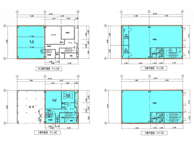
物件図面

物件図面

賃貸条件

月額費用 500,000円(税別)(3,275円/坪)
共益費 共益費込
仲介手数料 500,000円(税別)
敷金 月額賃料6ヶ月分
礼金 月額賃料1ヶ月分(税別)
入居可能日 即入居可能

物件概要

物件総称名 愛和ビル
住所 新潟県新潟市中央区白山浦1-613
交通 新潟交通バス「新潟市役所」徒歩約2分
階数/総階数 1階+2階+中2階+3階/4階
面積 152.66坪/504.68m²
用途/仕様 賃貸オフィス/貸事務所,貸店舗/商業施設
建物構造 鉄骨(S)造
竣工年月 1975年8月
取引態様 仲介

設備詳細

空調 個別空調
トイレ 男女別トイレ
駐車場設備 有り(平面式) 縦列・最大6台(賃料に含む)
備考 【敷地内駐車場最大6台(縦列)】

契約形態:普通賃貸借契約
契約期間:2年間
引渡条件:ご協議
駐車料:賃料に含む


・緑豊かな白山公園や、新潟市陸上競技場、新潟県民会館などの文化施設が徒歩圏内です。
・バスターミナル「市役所前」まで徒歩約2分です。

※当社指定の家賃保証会社にご加入頂く場合がございます。
 初回保証料︓賃料の1.5ヶ月分 / 更新料 賃料の10%(1年毎)
※建物内の設備(空調・換気・給排水等)の維持管理及び修繕等は賃借人負担となります。

最新物件確認日:2025年2月27日

物件の雰囲気

新潟市陸上競技場や白山公園の近くの一棟貸建物です。

駐車場は最大6台駐車可能です。オフィス、塾やスクールに最適です。

周辺地図

この物件に関する
お問い合わせ窓口