事業用賃貸物件検索

LEXN B(レクスン B)7F-4区画

物件情報(賃貸オフィス/貸事務所)

物件外観

物件外観

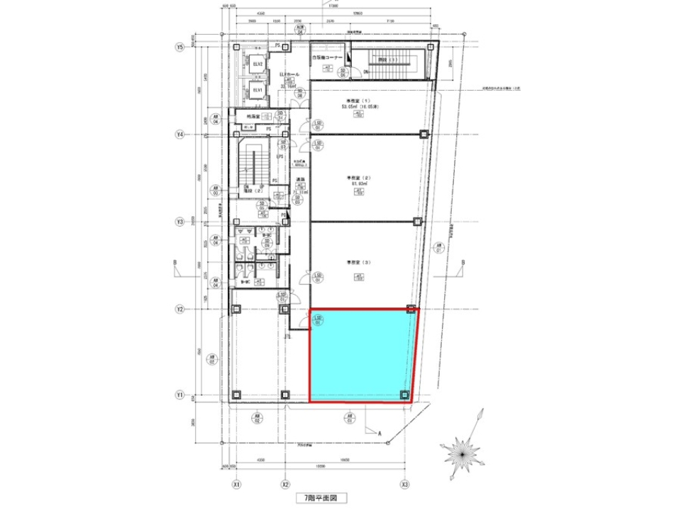
区画図面

区画図面

賃貸条件

月額費用 210,780円(税別)(9,000円/坪)
共益費 70,260円(税別)
仲介手数料 210,780円(税別)
敷金 賃料の12ヶ月分
礼金 -
入居可能日 2026年8月21日

物件概要

物件総称名 LEXN B(レクスン B)
住所 新潟県新潟市中央区天神1丁目12-8
交通 JR新潟駅 徒歩2分
階数/総階数 7階/7階
面積 23.42坪/77.44m²
用途/仕様 賃貸オフィス/貸事務所
建物構造 鉄骨(S)造
耐震 新耐震基準
竣工年月 2010年2月
取引態様 仲介

設備詳細

床仕様 OAフロア有
天井高 2,700mm
空調 個別空調
トイレ 男女別トイレ
エレベーター 乗用(人荷共用)2基
駐車場設備 応相談 近隣駐車場をご紹介します
備考 新潟駅ほぼ直結(徒歩約1分)の店舗・オフィスビルです。
最上階7階で南向きの区画で、解放感のあるオープンオフィスです。
近隣にはコンビニや飲食店舗などが多数あります。

■耐震:新耐震基準
■引渡:オフィス仕様
■入居可能時期:2026年8月21日以降入居可能
■契約期間:2年間
■駐車場:近隣駐車場をご紹介
■貸室で使用する電気及び塵芥処理に要する費用が別途かかります。
■共用入口にセキュリティあり
■1F~3F店舗、2F~7F事務所(各階に給湯室があります。)

最新物件確認日:2026年3月23日

物件の雰囲気

白を基調とした明るく清潔感のある共用部です。

募集区画は7階最上階の区画です。現在はテナント様入居中です。

共用部 EVホール

共用部 階段/トイレ

共用部 給湯室

周辺地図

この物件に関する
お問い合わせ窓口