事業用賃貸物件検索

パープルマウンテン 1階A号室

物件情報(賃貸オフィス/貸事務所,貸店舗/商業施設)

物件外観

物件外観

物件図面

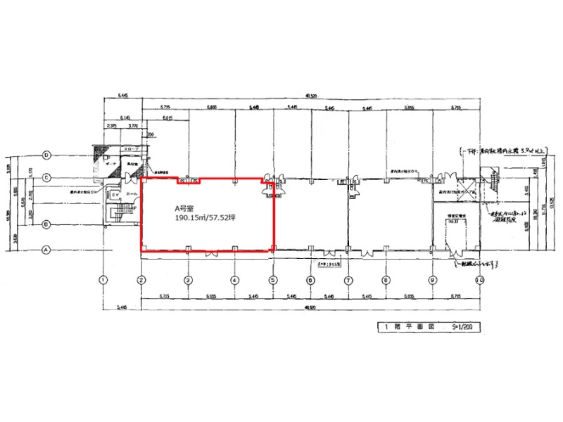
物件図面

賃貸条件

月額費用 420,000円(税別)(7,301円/坪)
共益費 共益費込
仲介手数料 420,000円(税別)
敷金 月額賃料の6ヶ月分
礼金 月額賃料の1ヶ月分
入居可能日 2026年4月1日

物件概要

物件総称名 パープルマウンテン
住所 新潟市中央区鐙西2丁目28-22
交通 新潟交通バス停「紫竹山」より徒歩約7分
階数/総階数 1階/5階
面積 57.52坪/190.15m²
用途/仕様 賃貸オフィス/貸事務所,貸店舗/商業施設
建物構造 鉄骨(S)造
耐震 新耐震基準
竣工年月 1999年10月
取引態様 一般媒介

設備詳細

空調 個別空調
駐車場設備 有り(平面式) 1台/8,000円 敷地内10台分あり
備考

店舗・事務所付賃貸マンションの1階角の貸室です。
オフィス仕様でのお引渡しとなります。
新潟バイパスの「弁天IC」より車で約3分の立地です!




・消費税並びに地⽅消費税がかかります。
・光熱⽔費がかかります。
・町内会費実費です。
・流し並びにトイレ部分は契約⾯積に含みます。
・本条件は予告なく変更する場合がございます。

最新物件確認日:2025年10月2日

物件の雰囲気

前面駐車場で開放的なオフィス空間

前面に駐車場がありますので、業務での車移動が非常に便利です。 また、出口面からの採光により、明るく開放的なオフィス空間となります。

周辺地図

この物件に関する
お問い合わせ窓口