| 月額費用 | 142,260円(税別)(6,000円/坪) |
|---|---|
| 共益費 | - |
| 仲介手数料 | 142,260円(税別) |
| 敷金 | 月額賃料6ヶ月分 |
| 礼金 | 月額賃料1ヶ月分 |
| 入居可能日 | 2026年7月1日 |
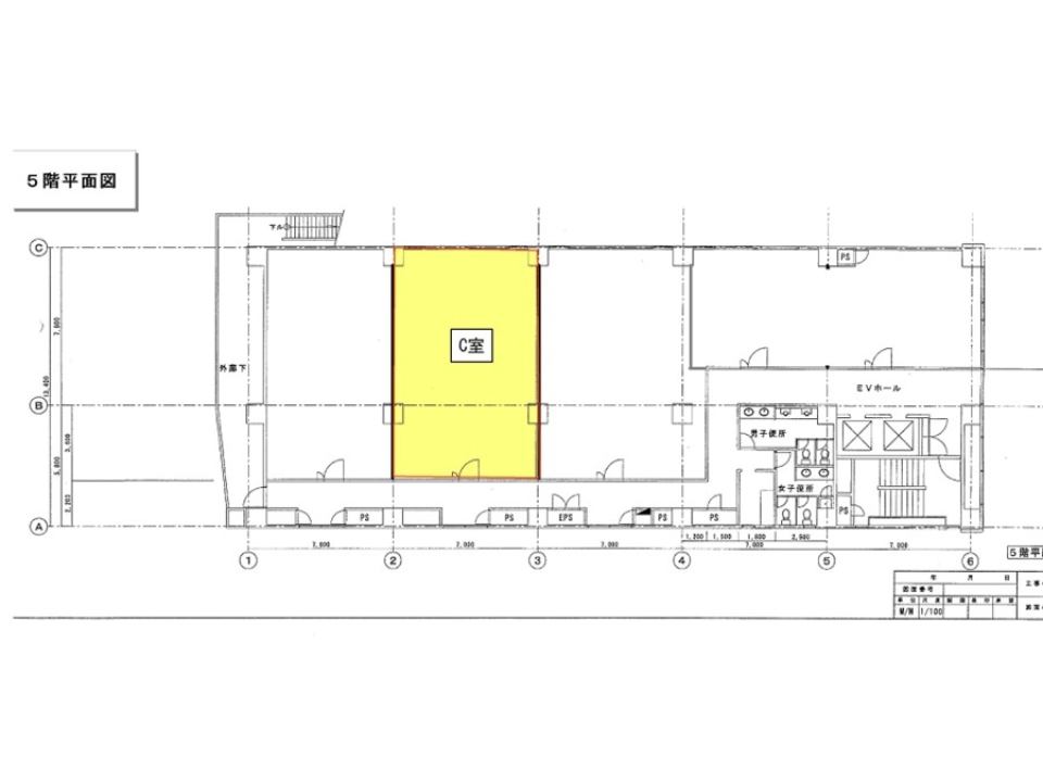
| 物件総称名 | 日生不動産西堀ビル |
|---|---|
| 住所 | 新潟県新潟市中央区西堀通7番町1555番地 |
| 交通 | 新潟交通バス停「古町通八番町 」より徒歩約2分 |
| 階数/総階数 | 5階/地上9階/塔屋1階 |
| 面積 | 23.71坪/78.40m² |
| 用途/仕様 | 賃貸オフィス/貸事務所 |
| 建物構造 | 鉄骨鉄筋コンクリート(SRC)造 |
| 竣工年月 | 1992年7月 |
| 取引態様 | 専任媒介 |
| 天井高 | 2,380mm |
|---|---|
| 空調 | 個別空調 |
| エレベーター | 乗用1基 |
| 備考 | 【2026年7月1日以降 入居可能】 契約形態:普通賃貸借契約 契約期間:3年間 引渡条件:ご協議 ・当社指定の家賃保証会社にご加入頂く場合がございます。 初回保証料:賃料の1.5ヶ月分 / 更新料:賃料の10%(1年毎) ・駐車場(近隣にあり) 全日:23,000円 / 昼間(7時〜19時):14,000円 / 夜間(19時〜翌7時):15,000円 ※上記駐車場は全て別途消費税がかかります。 ・6階〜9階は住居階(専用エレベーターあり) |
最新物件確認日:2026年2月25日
この物件に関する
お問い合わせ窓口