事業用賃貸物件検索

袋津五丁目貸倉庫事務所(1棟貸し)

物件情報(賃貸オフィス/貸事務所,貸倉庫/物流施設)

物件外観

物件外観

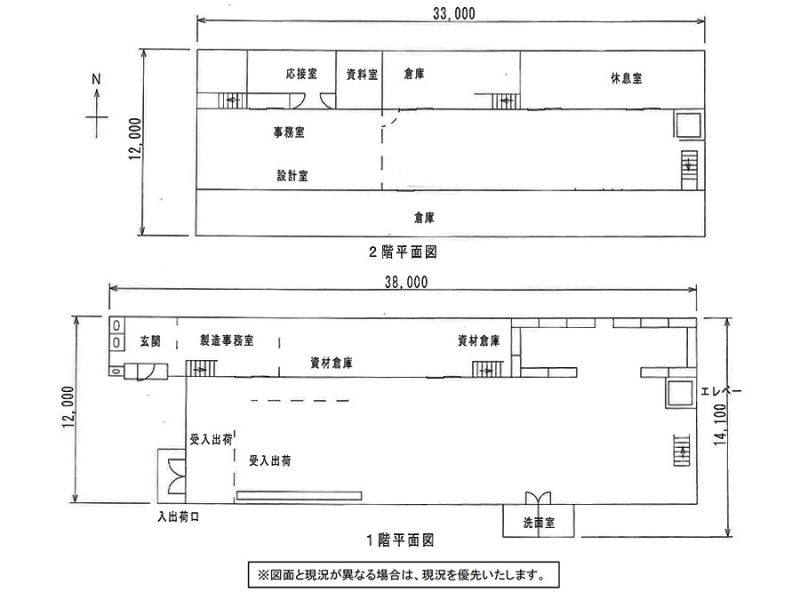
物件図面

物件図面

賃貸条件

月額費用 330,000円(税別)(2,055円/坪)
共益費 -
仲介手数料 330,000円(税別)
敷金 月額賃料4ヶ月分
礼金 月額賃料1ヶ月分(税別)
入居可能日 即入居可能

物件概要

物件総称名 袋津五丁目貸倉庫事務所
住所 新潟県新潟市江南区袋津5-6-14
交通 新潟交通バス停「袋津」より徒歩約1分
階数/総階数 1階+2階/2階
面積 160.53坪/530.68m²
用途/仕様 賃貸オフィス/貸事務所,貸倉庫/物流施設
建物構造 鉄骨(S)造
竣工年月 1969年6月
取引態様 一般媒介

設備詳細

空調 個別空調
エレベーター 1基
駐車場設備 有り(平面式) 敷地内(15台程度)
備考 契約形態:普通賃貸借契約
契約期間:2年間
引渡条件:現況

・当社指定の家賃保証会社にご加入頂く場合がございます。
 初回保証料:賃料の1.5ヶ月分 / 更新料 賃料の10%(1年毎)
・貸室面積は登記簿面積となります。
・貸室内設備、什器、備品に関しては前賃借人の残置物となります。
・2階部分については一部床を解体予定となります。

最新物件確認日:2025年5月21日

物件の雰囲気

拠点としての設備と倉庫を備えた好物件!

事務所の他、応接室、休息室、書庫がございます。 1階と2階はエレベーターで行き来できます。

事務所内観

倉庫内観

屋外収納

周辺地図

この物件に関する
お問い合わせ窓口